sp45f数字锁定平衡阀

A46F/Y先导式安全阀

  • 质量稳定
  • 价格合理
  • 交货快捷
  • 天力水暖为您提供全套工程阀门解决方案
  • 销售:0577-8681 5766
  • 传真:0577-8683 8292
  • 地址:浙江省温州市龙湾沙城七五兴业路11号
15325513395

详细介绍

用途特点
先导式安全泄压阀是一种新颖结构的安全阀。主要用于石油天气、化工、电力、冶金和城市燃气等领域,是受压设备、容器或管路上的最佳超压保护装置。其主要优点是变弹簧直接作用为导阀间接作用,提高了动作的灵敏度,而且主阀采用套筒活塞式,双重密封阀座结构,动作精度高、重复性好、回座快、不泄漏、能带高背压排放、工作寿命长、工作稳定可靠,它还可以在线调校、反复启跳排放后,仍然能自动回座,关闭严格,操作维护方便。

要零部件材料
NO. 零件名称 Ax46Y/F AF46Y/F 材料 KAX46Y/F 材料
1 阀体 WCB WCB
2 阀瓣 2Cr13/2Cr13+PTFE 1Cr18Ni9Ti/1Cr18Ni9Ti+PTFE
3 导向套 1Cr18Ni9Ti 1Cr18Ni9Ti
4 弹簧 50CrVA 50CrVA
5 O型圈 氟橡胶 氟橡胶
6 阀盖 25 25
7 导阀 部件
 
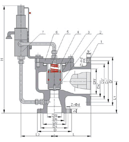
外形尺寸和连接尺寸(mm)
型号 公称 通径 do L L1 L2 H DN’ D D1 D2 D6 b Z-Фd D’ D1’ D2’ D6’ b’ Z-фd’
(K) AX46 F/Y- 16 AF46 Y6 25 15 110 95 150 365 32 115 85 65   16 44 140 100 78   18 48
32 20 115 100 150 375 40 140 100 78   18 48 150 110 85   18 48
40 25 120 110 160 390 50 150 110 85   18 48 165 125 100   20 48
50 32 135 120 160 410 65 165 125 100   20 48 185 145 120   20 48
65 40 160 140 175 435 80 185 145 120   20 48 200 160 135   20 88
80 50 170 135 175 451 100 200 160 135   20 88 220 180 155   22 88
100 65 195 175 195 500 125 220 180 155   22 88 250 210 185   24 88
125 80 210 190 220 526 150 250 210 185   22 88 285 240 210   24 8-23
150 100 255 230 265 623 175 285 240 210   24 8-23 315 270 240   26 8-23
200 125 300 260 300 690 250 340 295 265   26 12-23 405 355 320   30 12-26

 

(K) AX46 F/Y- 25 AF46 Y-25 25 15 110 95 150 365 32 115 85 65   16 44 140 100 78   18 48
32 20 115 100 150 375 40 140 100 78   18 48 150 110 85   18 48
40 25 120 110 160 390 50 150 110 85   18 48 165 125 100   20 48
50 32 135 120 160 410 65 165 125 100   20 48 185 145 120   20 48
65 40 160 140 175 435 80 185 145 120   22 88 200 160 135   20 88
80 50 170 135 175 451 100 200 160 135   22 88 220 180 155   22 88
100 65 195 175 195 500 125 230 190 160   24 8-23 2502 210 185   22 88
125 80 210 190 220 526 150 270 220 188   28 8-26 85 240 210   24 8-23
150 100 255 230 265 623 175 300 250 218   30 8-26 310 270 240   26 8-23
200 125 300 260 300 690 250 360 310 278   34 12-26 405 355 320   30 12-26

 

(K) AX46 F/Y- 40 AF46 Y-40 25 15 110 95 150 365 32 115 85 65 58 16 44 140 100 78   18 48
32 20 115 100 150 375 40 140 100 78 66 18 48 150 110 85   18 48
40 25 120 110 160 390 50 150 110 85 76 18 48 165 125 100   20 48
50 32 135 120 160 410 65 165 125 100 88 20 48 185 145 120   20 48
65 40 160 140 175 435 80 185 145 120 110 22 88 200 160 135   20 88
80 50 170 135 175 451 100 200 160 135 121 22 88 220 180 155   22 88
100 65 195 175 195 500 125 235 190 160 150 24 8-23 250 210 185   22 88
125 80 210 190 220 526 150 270 220 188 176 28 8-26 285 240 210   24 8-23
150 100 255 230 265 623 175 300 250 218 204 30 8-26 310 270 240   26 8-23
200 125 300 260 300 690 250 375 320 282 260 38 12-30 405 355 320   30 12-26

 

(K) AX46 F/Y 100 AF46 Y00 25 15 110 100 160 365 32 140 100 78 58 24 48 140 100 78 66 18 48
32 20 130 110 160 375 40 155 110 82 66 24 4-23 150 110 85 76 18 48
40 25 130 120 170 445 50 170 125 95 76 26 4-23 165 125 100 88 20 48
50 32 135 130 195 460 65 195 145 112 88 28 4-26 185 145 120 110 22 88
65 40 175 160 225 495 80 220 170 138 110 32 8-26 200 160 135 121 22 88
80 50 175 160 225 525 100 230 180 148 121 34 8-26 235 190 160 150 24 8-23
100 65 195 195 245 565 125 265 210 172 150 38 8-30 270 220 188 176 28 8-25
150 100 280 265 265 610 200 355 290 250 204 46 12-34 375 320 282 260 38 12-30
200 125 300 295 300 680 250 430 360 312 260 54 12-41 450 385 345 313 42 12-34

 

(K) AX46 F/Y- 64 AF46 Y-64 25 15 110 100 160 365 32 140 100 78 58 22 48 140 100 78 66 18 48
32 20 130 110 160 375 40 155 110 82 66 24 4-23 150 110 85 76 18 48
40 25 130 120 170 445 50 170 125 95 76 24 4-23 165 125 100 88 20 48
50 32 135 130 195 460 65 180 135 105 88 26 4-23 185 145 120 110 22 88
65 40 175 160 225 495 80 205 160 130 110 28 8-23 200 160 135 121 22 88
80 50 175 160 225 525 100 215 170 140 121 30 8-23 235 190 160 150 24 8-23
100 65 195 195 245 565 125 250 200 168 150 32 8-26 270 220 188 176 28 8-25
150 100 280 265 265 610 200 345 280 240 204 38 8-34 375 320 282 260 38 12-30
200 125 300 295 300 680 250 405 345 300 260 44 12-34 450 385 345 313 42 12-34
产品尺寸

© 2017 温州天力水暖设备有限公司 版权所有 备案号:浙ICP备19051804号 瑞奇阀门
Top

[关闭]免费接听天力销售工程师电话

输入手机或固定电话号码,点击“免费咨询”按钮后,
我们的服务人员会在15秒内回拨您。

手机请直接输入:如 13878800000
座机前请加区号:如 02168103333
我们已对本次通话全程加密,您的通话费用我们已经帮您支付,请放心接听!
免费通话所产生的费用由我们来支付,请放心接听!
销售热线:0577-86815766