sp45f数字锁定平衡阀

GA42H单杠杆安全阀

  • 质量稳定
  • 价格合理
  • 交货快捷
  • 天力水暖为您提供全套工程阀门解决方案
  • 销售:0577-8681 5766
  • 传真:0577-8683 8292
  • 地址:浙江省温州市龙湾沙城七五兴业路11号
15325513395

详细介绍

用途特点
GA42H型安全阀适用于温度≤450℃的电站锅炉和压力容器上,防止压力超过允许最高值,介质可为蒸汽、空气。
主要零部件材料
NO. 零件名称 C型 材料
1 阀体 碳钢
2 导向套 不锈钢
3 阀瓣 2Cr13
4 阀杆 2Cr13
5 杠杆 碳钢
6 重锤 铸铁
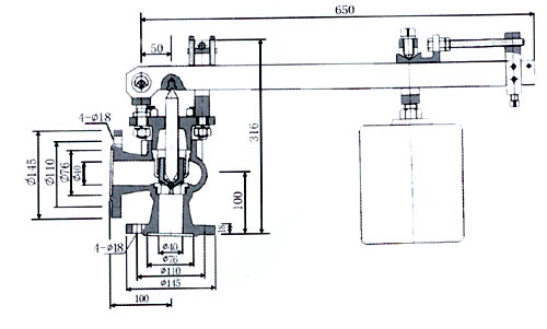
外形尺寸和连接尺寸(mm)
型号 公称通径DN(mm) 尺寸 (mm)
do-z D D1 D2 D6 f f1 b z-d L H 出口法兰式 出口承插式
DN’ D2’ n-M’ D1’ D’ d1 K2 K3 D3
GA42H6 50 40×1 165 125 100 / 3 / 16 48 840 412 125 175 86 120 235 120 145 162 190
GA42H-25 50 40×1 165 125 100 / 3 / 20 48 840 412 125 175 86 120 235 120 145 162 190
GA42H-40 50 40×1 165 125 100 88 3 4 20 48 840 412 125 175 86 120 235 120 145 162 190
GA42H-64 50 40×1 175 135 105 88 3 4 26 4-23 840 420 125 175 86 120 235 120 145 162 190
GA42H00 50 40×1 195 145 112 88 3 4 28 4-25 840 420 125 175 86 120 235 120 145 162 190
产品结构

© 2017 温州天力水暖设备有限公司 版权所有 备案号:浙ICP备19051804号 瑞奇阀门
Top

[关闭]免费接听天力销售工程师电话

输入手机或固定电话号码,点击“免费咨询”按钮后,
我们的服务人员会在15秒内回拨您。

手机请直接输入:如 13878800000
座机前请加区号:如 02168103333
我们已对本次通话全程加密,您的通话费用我们已经帮您支付,请放心接听!
免费通话所产生的费用由我们来支付,请放心接听!
销售热线:0577-86815766