sp45f数字锁定平衡阀

BZ41H/W碳钢不锈钢保温闸阀

  • 质量稳定
  • 价格合理
  • 交货快捷
  • 天力水暖为您提供全套工程阀门解决方案
  • 销售:0577-8681 5766
  • 传真:0577-8683 8292
  • 地址:浙江省温州市龙湾沙城七五兴业路11号
15325513395

详细介绍

应用规范
1、设计制造按GB12234-89
2、结构长度按GB12221-89
3、法兰尺寸按JB/T79-94
4、阀门检查和试验按GB13927

主要零件材质
零件名称 ZG1Cr18Ni9Ti系列 ZG00Cr18Ni10系列 ZG1Cr18Ni12Mo2Ti系列 ZG00Cr17Ni14Mo2系列 WCB系列
阀体/阀盖 ZG1Cr18Ni9Ti ZG00Cr18Ni10 ZG1Cr18Ni12Mo2Ti ZG00Cr17Ni14Mo2 WCB
闸板 ZG1Cr18NI9Ti ZG00Cr18Ni10 ZG1Cr18Ni12Mo2Ti ZG00Cr17Ni14Mo2 1Cr13
阀杆 1Cr18Ni9Ti ooCr18Ni10 1Cr18Ni12Mo2Ti ooCr17Ni14Mo2 1Cr13
填料 PTFE编织 PTFE编织 PTFE编织 PTFE编织 石墨Graphite
垫片 304L+PTFE 304L+PTFE 316L+PTFE 316L+PTFE 石墨+304
Graphite+304
压盖 ZG1Cr181Ni10 ZG00Cr18Ni10 ZG1Cr18Ni12Mo2Ti ZG00Cr17Ni14Mo2 WCB
填料压环 1Cr18Ni9Ti 00Cr18Ni10 1Cr18Mi12Mo2Ti 00Cr17Ni14Mo2 1Cr13
螺栓 1Cr171Ni2 1Cr171Ni2 1Cr171Ni2 1Cr171Ni2 35CrMoA
螺母 1Cr18Ni9Ti 1Cr18Ni9Ti 1Cr18Ni9Ti 1Cr18Ni9Ti 45


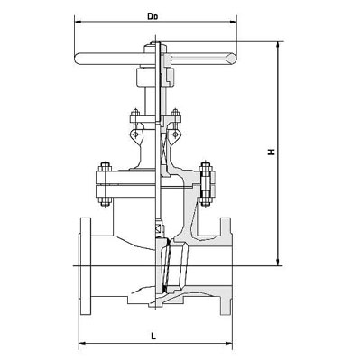
1.6MPa主要连接尺寸

尺寸 DN 40 50 65 80 100 125 150 200 250 300
L mm 200 250 265 280 300 325 350 400 450 500
H mm 310 358 372 435 500 614 674 818 969 1145
W mm 200 240 240 280 300 320 360 400 450 560


2.5MPa主要连接尺寸

尺寸 DN 40 50 65 80 100 125 150 200 250 300
L mm 200 250 265 280 300 325 350 400 450 500
H mm 358 373 435 500 614 674 818 969 1145 1145
W mm 240 240 280 300 320 360 400 450 560 640


4.0MPa主要连接尺寸

尺寸 DN 40 50 65 80 100 125 150 200 250 300
L mm 200 250 280 310 350 400 450 550 650 750
H mm 358 373 435 500 614 674 818 969 1145 1145
产品尺寸

© 2017 温州天力水暖设备有限公司 版权所有 备案号:浙ICP备19051804号 瑞奇阀门
Top

[关闭]免费接听天力销售工程师电话

输入手机或固定电话号码,点击“免费咨询”按钮后,
我们的服务人员会在15秒内回拨您。

手机请直接输入:如 13878800000
座机前请加区号:如 02168103333
我们已对本次通话全程加密,您的通话费用我们已经帮您支付,请放心接听!
免费通话所产生的费用由我们来支付,请放心接听!
销售热线:0577-86815766