sp45f数字锁定平衡阀

TD941W电动通风蝶阀

  • 质量稳定
  • 价格合理
  • 交货快捷
  • 天力水暖为您提供全套工程阀门解决方案
  • 销售:0577-8681 5766
  • 传真:0577-8683 8292
  • 地址:浙江省温州市龙湾沙城七五兴业路11号
15325513395

详细介绍

产品概述
电动通风蝶阀采用钢板焊接制造,具有结构尺寸短,重量轻,安装方便等特点。该阀驱动力矩小,启闭灵活,操作方便。阀体上设置油密封挡圈,密封副之间无可见间隙,泄漏率小。蝶板与阀体间的膨胀间隙大,能有效防止因热涨冷缩造成的卡死现象。本阀可配备多种驱动装置,如手动装置、蜗轮传动装置、气动装置、电动装置。通风蝶阀广泛用于治金、师化、电力、建材、矿山等工业管线,对介质气体气控制或调节作用。

主要参数
公称压力(MPa)
0.05MPa
介质温度
-30℃~-350℃
强度试验
0.1MPa
适用介质
冷热风、烟气
介质流速
25m/s
泄漏率
3%

 

主要零件材料

零件名称
阀体
阀板
阀轴
材料
碳钢
碳钢
碳钢、不锈钢

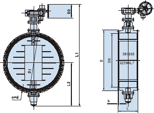
TD941W电动通风蝶阀主要外形连接尺寸
DN
D
D1
L
L1
L2
 n-Фd
b
300
405
370
120
716
220
82
10
350
455
420
140
786
240
84
10
400
505
470
140
924
270
128
10
450
570
530
160
999
295
128
10
500
620
580
160
1079
325
128
10
600
720
680
180
1140
380
168
12
700
820
780
180
1240
430
168
12
800
920
880
200
1344
490
168
12
900
1040
990
200
1444
540
168
14
1000
1140
1090
220
1544
590
208
14
1100
1240
1190
220
1644
640
208
14
1200
1340
1290
240
1744
690
208
14
1300
1440
1390
240
1864
760
208
16
1400
1540
1490
260
2020
810
248
16
1500
1640
1590
260
2120
860
248
16
1600
1740
1690
280
2240
980
248
16
1700
1840
1790
280
2340
1030
28-22
16
1800
1940
1890
300
2440
1096
28-22
16
1900
2040
1990
300
2540
1146
32-22
16
2000
2150
2090
320
2640
1196
32-26
16
2200
2360
2300
340
3252
1296
36-26
16
2400
2560
2500
360
3452
1396
36-26
18
2600
2760
2700
380
3652
1496
40-26
18
2800
2960
2900
400
3852
1596
40-26
18
3000
3190
3110
400
3896
1698
44-30
18
3200
3390
3310
440
4110
1798
44-30
20
3400
3590
3510
440
4396
1898
48-30
20
3600
3790
3710
480
4636
1998
48-30
20
3800
4000
3910
480
4886
2098
52-30
22
4000
4210
4120
520
5160
2210
52-30
22
产品尺寸

© 2017 温州天力水暖设备有限公司 版权所有 备案号:浙ICP备19051804号 瑞奇阀门
Top

[关闭]免费接听天力销售工程师电话

输入手机或固定电话号码,点击“免费咨询”按钮后,
我们的服务人员会在15秒内回拨您。

手机请直接输入:如 13878800000
座机前请加区号:如 02168103333
我们已对本次通话全程加密,您的通话费用我们已经帮您支付,请放心接听!
免费通话所产生的费用由我们来支付,请放心接听!
销售热线:0577-86815766