sp45f数字锁定平衡阀

电动矩形百叶式调节蝶阀

  • 质量稳定
  • 价格合理
  • 交货快捷
  • 天力水暖为您提供全套工程阀门解决方案
  • 销售:0577-8681 5766
  • 传真:0577-8683 8292
  • 地址:浙江省温州市龙湾沙城七五兴业路11号
15325513395

详细介绍

用途和特点
电动百叶式蝶阀配置电动执行机构广泛应用于建材、治金、矿山、电力等生产过程,能自动控制或手动控制调节管路中介质流量。蝶板采用百叶多轴体结构,液体均匀,启闭力矩小,动作灵敏,性能可靠。

主要技术参数
公称压力PN
0.05MPa
泄漏率
≤3%
适用温度
-30℃~350℃
介质流量
≤25m/s
适用介质
粉尘、含尘气体
 
 

 

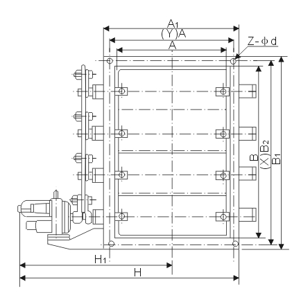
电动矩形百叶式调节蝶阀主要外形连接尺寸

A×B
A1×B1
A2×B2
L
L1
H1
H
b
Z-Фd
X
Y
320×180
375×105
400×240
180
245
580
735
8
164
5
3
320×250
375×395
400×330
180
245
625
825
8
164
5
3
400×200
455×255
500×330
200
245
610
805
8
168
5
3
400×320
455×375
500×420
200
245
870
915
8
168
5
3
500×200
555×255
600×300
220
245
610
805
8
168
5
3
500×400
555×455
600×500
220
245
370
915
8
208
5
5
630×320
685×375
730×420
220
245
610
805
10
208
7
3
630×400
685×455
730×500
220
245
710
995
10
248
7
5
800×400
855×455
900×500
240
300
670
945
10
248
7
5
800×630
855×685
900×730
240
300
710
995
10
288
7
7
1000×500
1070×570
1130×830
260
300
790
1075
10
24-23
7
5
1000×800
1070×870
1130×930
260
300
905
1270
10
28-23
7
7
1250×630
1320×700
1380×760
280
300
1005
1505
10
32-23
9
7
1250×1000
1320×1070
1380×1130
280
300
1105
1705
10
32-23
9
7
1400×800
1470×870
1530×930
300
385
1075
1575
10
36-23
11
7
1400×1250
1470×1320
1530×1380
300
385
1300
2025
10
40-23
11
9
1600×1000
1670×1070
1730×1130
320
385
1175
1775
10
36-23
11
7
1600×1250
1670×1320
1730×1380
320
385
1300
2025
10
40-23
11
9
1800×1250
1870×1320
1930×1380
340
420
1450
2175
10
44-23
13
9
1800×1400
1870×1470
1930×1530
340
420
1525
2325
10
48-23
13
11
2000×1250
2070×1320
2130×1380
360
420
1450
2175
10
48-23
15
9
2000×1800
2070×1670
2130×1730
360
420
1620
2520
12
52-23
15
11
2500×1800
2570×1870
2630×1730
420
450
1695
2595
12
56-23
17
11
2500×2000
2570×2070
2630×2130
420
450
1895
2995
12
64-23
17
15
2800×2500
2870×2570
2930×2630
440
450
2145
3195
12
72-23
19
17
3200×2800
3270×2870
3330×2930
480
480
2325
3825
12
80-23
21
19
3600×3200
3670×3270
3730×3330
520
480
2525
4225
12
88-23
23
21
4000×3600
4070×4670
4130×4730
560
480
2725
4825
12
100-23
27
23

产品尺寸

© 2017 温州天力水暖设备有限公司 版权所有 备案号:浙ICP备19051804号 瑞奇阀门
Top

[关闭]免费接听天力销售工程师电话

输入手机或固定电话号码,点击“免费咨询”按钮后,
我们的服务人员会在15秒内回拨您。

手机请直接输入:如 13878800000
座机前请加区号:如 02168103333
我们已对本次通话全程加密,您的通话费用我们已经帮您支付,请放心接听!
免费通话所产生的费用由我们来支付,请放心接听!
销售热线:0577-86815766